7895, Notre-Dame Est, Montréal QC H1L 3K7
Plans

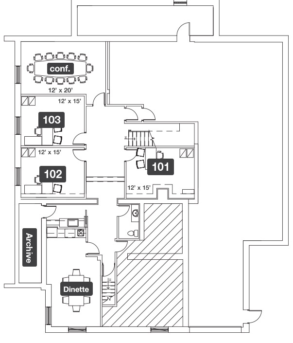
Lors d'un choix de location de bureau, il est toujours préférable d'avoir une idée à quoi s'attendre en termes de dimensions et d'emplacement à l'intérieur du bâtiment. Jetez un coup d'œil à nos plans ci-dessous et faites votre choix de bureau.



Plan niveau 1



Plan niveau 2

Pour obtenir plus de détails, contactez-nous à l'aide de ce formulaire



Form Button

Pour en savoir plus sur nos disponibilités de location 514-355-7895